Home
News
Property
Sport
Opinion
What’s On
Send your story
Offers
Subscription
More
Planning
More than 120 'affordable' homes approved by Cornwall Council
sponsored
Save money and get deals on name brand groceries with Discount Dragon
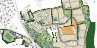
Nansledan: A decade of sustainable growth in Cornwall
Santa shows how he gets to the ground without a chimney
Plans for nearly 600 Bodmin homes approved despite leat concerns
Residents urged to act as NHS faces equipment shortfall
Stratton drivers face chaos as urgent roadworks cause delays
New affordable and accessible homes unveiled
More than 1,000 homes without power following Bude incident
Residents gathered at the Memorial Hall to voice concerns about the Beacon Solar farm proposal, with MP Sir Geoffrey Cox leading efforts against it.
Adventure park could get over a thousand homes
Lawyers warn against home-buying reforms
Rallying cries in packed public meeting to 'Stop Beacon Solar'
Planning: Consultation begins on plans for 550 homes in town
Homes
New guide helps Cornish residents cut energy bills
Housebuilder plans 550 new homes for town
Cornwall braced for heavy rain as yellow weather warning issued
Temporary traffic lights for Bude road to last a year
UK councils sit on empty buildings amid housing crisis
Cornwall Council announces new priorities focusing on communities, homes, economy, transport, and the environment, with a vision for 2029.
Nostalgia
Looking Back: Take a look through our archive
Majority of rural councils have no targets for social housing
Cornish housing group among UK’s top home builders
GP says plans for 680 homes in Bodmin 'too much in one go'
Less desire to move to coastal areas among first-time buyers
Property hit with closure order following antisocial behaviour spike
Owned or licensed to Tindle Newspapers Ltd. | Independent Family-Owned Newspapers | Copyright & Trade Mark Notice & 2013 - 2025